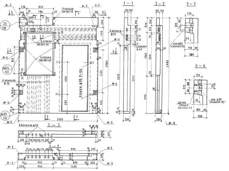
СВБЭ-25.2.30т-4л

Чертеж изделия:
Чертеж СВБЭ-25.2.30т-4л
Характеристики изделия:
ПараметрЗначение
Длина2500 мм
Ширина200 мм
Высота2980 мм
Масса2150 кг
Нормативный документСерия 1.134-1

Блоки внутренних  стен  по Серии 1.134-1.

СБВЭ-25.2.30т-4л   Стеновой блок внутренний электротехнический.