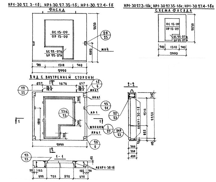
НР1-30.27.35-1б

Чертеж изделия:
Чертеж НР1-30.27.35-1б
Характеристики изделия:
ПараметрЗначение
Длина2990 мм
Ширина350 мм
Высота2650 мм
Масса2555 кг
Нормативный документСерия 1.132-1

НР1-30.27.35-1б   Наружная стеновая панель рядовая по Серии 1.132-1.